Listing Tools

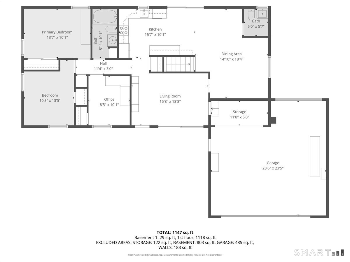
Welcome to 60 Cedar Ln, a beautifully updated 3-bedroom, 1.5-bathroom home that has been meticulously renovated over the past 5 years, offering modern comforts and appeal. Step inside to discover an open-concept kitchen featuring custom black cabinets, sleek white quartz countertops, and black stainless steel appliances. The dining and kitchen areas boast new hardwood floors, seamlessly blending with the refinished hardwood throughout the rest of the home. The bathrooms are thoughtfully designed, with updated vanities, tile flooring, and modern fixtures. Every detail has been attended to, from new doors, trim, and light fixtures to updated electrical, PVC plumbing, new furnace, water heater, and well pump. The oversized garage, with front and rear entrances, provides ample space for vehicles and storage, while the covered porch invites you to relax and enjoy the serene surroundings. The home also features a new sump pump, bulkhead door, and smoke detectors, ensuring peace of mind for years to come. The central location near RT 2 & I-395 makes commuting a breeze, while the quiet neighborhood offers a sense of tranquility. Whether you're enjoying the natural light streaming through the windows or entertaining in the open kitchen, this home is designed for both comfort and convenience.

Property Details of 60 Cedar Lane

Property Details

Interior Features

Utilities and Appliances

Community

Other Details

Map Location

Driving Directions

Listed by Ashley Livernoche of Compass Connecticut,LLC ((860) 576-3315)

The data relating to real estate for sale on this website appears in part through the SmartMLS Internet Data Exchange program, a voluntary cooperative exchange of property listing data between licensed real estate brokerage firms, and is provided by SmartMLS through a licensing agreement. Listing information is from various brokers who participate in the SmartMLS IDX program and not all listings may be visible on the site. The property information being provided on or through the website is for the personal, non-commercial use of consumers and such information may not be used for any purpose other than to identify prospective properties consumers may be interested in purchasing. Some properties which appear for sale on the website may no longer be available because they are for instance, under contract, sold or are no longer being offered for sale. Property information displayed is deemed reliable but is not guaranteed. Copyright 2026 SmartMLS, Inc.

Hi there! How can we help you?

Contact us using the form below or give us a call.

Send Us A Message:

I agree to receive marketing and customer service calls and text messages from Carey & Guarrera Real Estate. To opt out, you can reply 'stop' at any time or click the unsubscribe link in the emails. Consent is not a condition of purchase. Msg/data rates may apply. Msg frequency varies. Privacy Policy.

Do not fill in this field:

This site is protected by reCAPTCHA and the Google Privacy Policy and Terms of Service apply.

Hi there! How can we help you?

Contact us using the form below or give us a call.

Send Us A Message:

Do not fill in this field:

This site is protected by reCAPTCHA and the Google Privacy Policy and Terms of Service apply.

Hi there! How can we help you?

Contact us using the form below or give us a call.

Send Us A Message:

Do not fill in this field:

This site is protected by reCAPTCHA and the Google Privacy Policy and Terms of Service apply.

Do not fill in this field:

This site is protected by reCAPTCHA and the Google Privacy Policy and Terms of Service apply.

Do not fill in this field:

This site is protected by reCAPTCHA and the Google Privacy Policy and Terms of Service apply.

Do not fill in this field:

This site is protected by reCAPTCHA and the Google Privacy Policy and Terms of Service apply.

$

Do not fill in this field:

This site is protected by reCAPTCHA and the Google Privacy Policy and Terms of Service apply.