Listing Tools

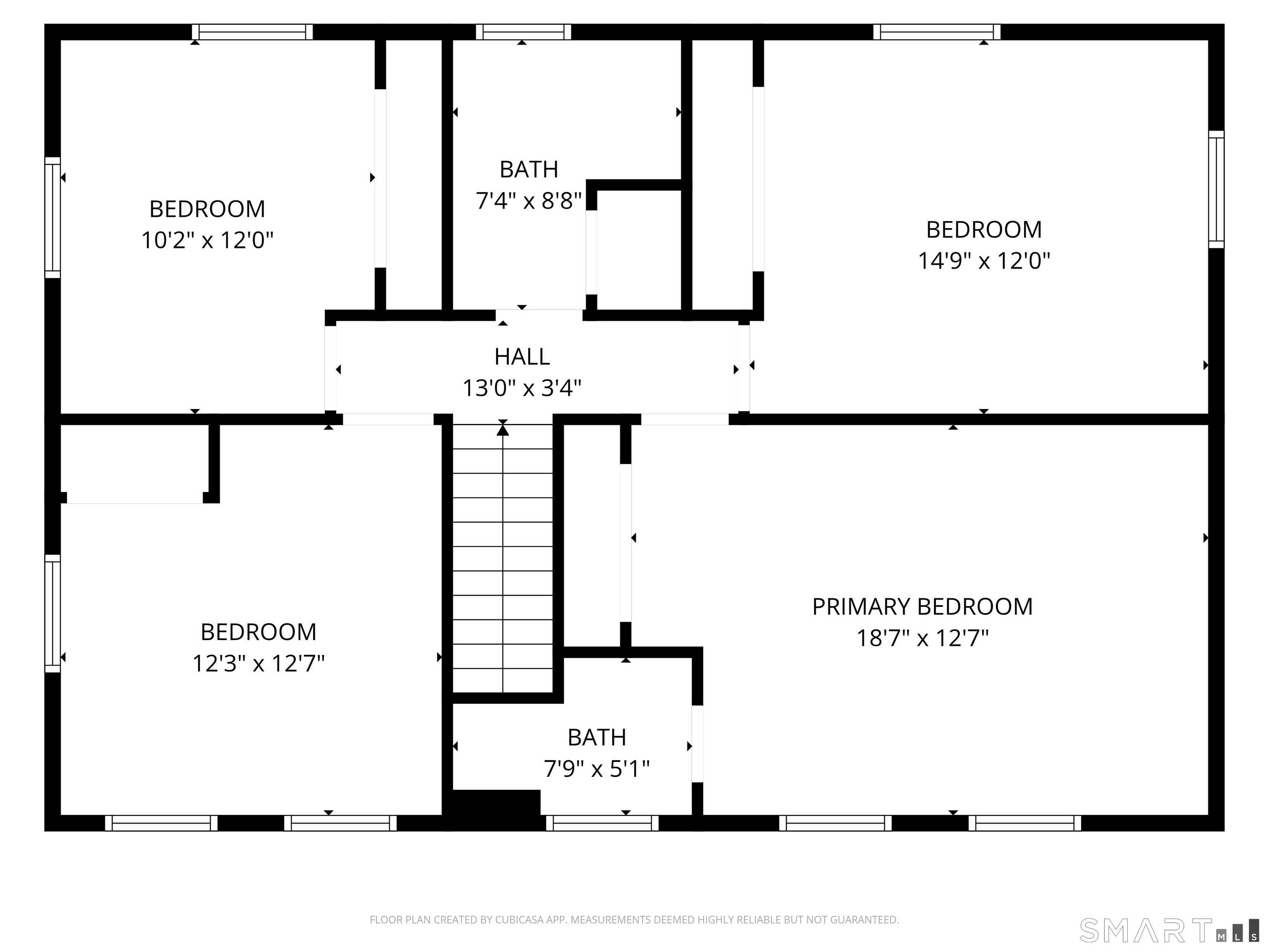
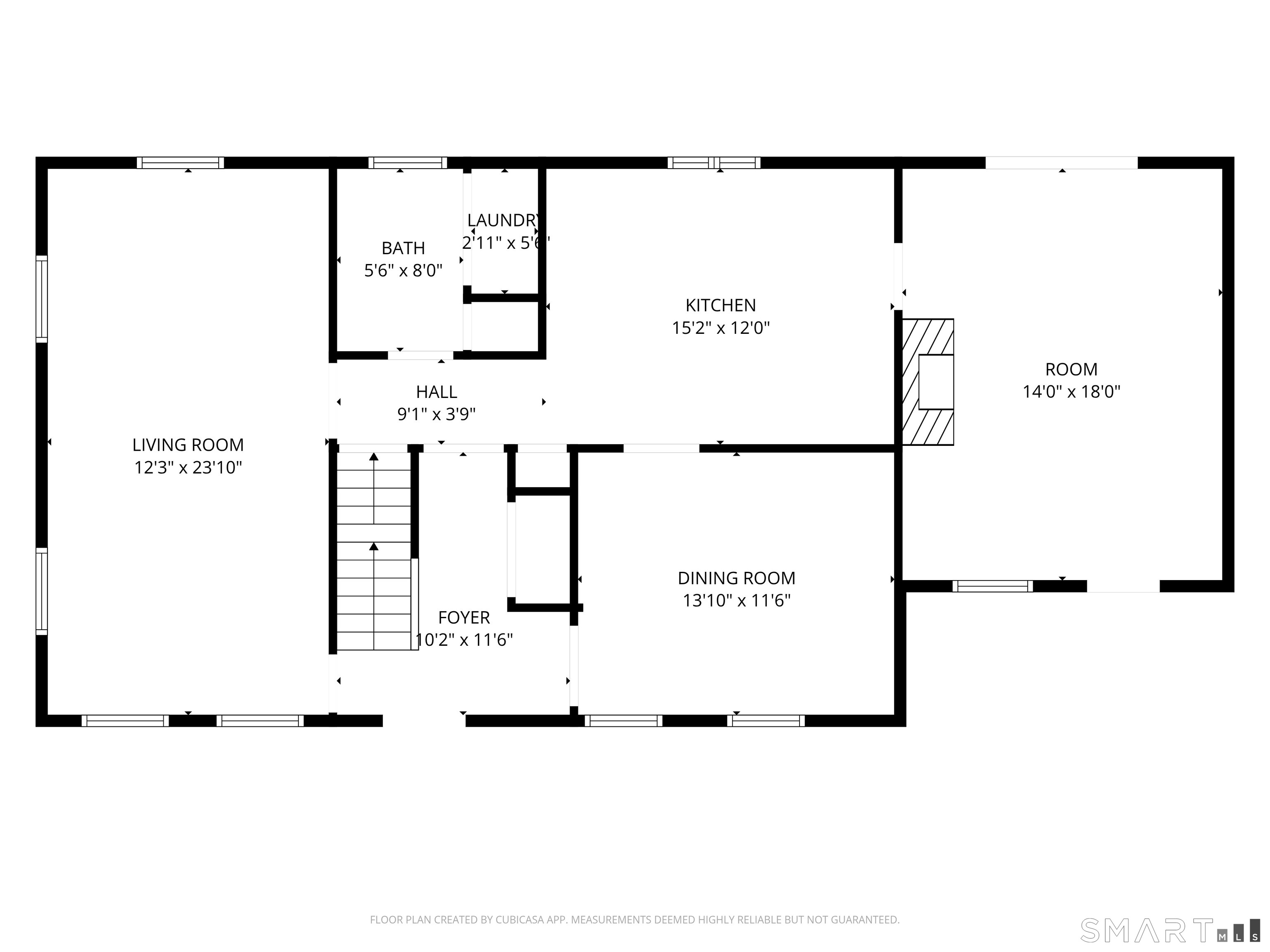
This Terrific 4 bedroom Colonial located on a quiet cul de sac that backs to woods has the space you have been looking for. A traditional layout with the first floor encompassing living space, bedrooms upstairs, and a large heated and finished lower level with walk out to the back yard. The main floor has a huge front to back 24x12 Living room, a formal Dining room, an Eat in Kitchen, Family room with fireplace and slider to rear deck, and 1st floor laundry in the guest bathroom. Upstairs the Primary bedroom features a double closet, a private bathroom with shower, and there are 3 more generous sized bedrooms and the full main bathroom. The heated lower level is over 30x20, has additional storage and mechanical rooms, and a walk out to the rear yard. The complete interior has been painted and new laminate floors have been installed throughout. There is a front sitting porch, a rear deck with built in bench seat, and room to play. A sound, solid home ready for it's new owners.

Property Details of 50 Woodhaven Drive

Property Details

Interior Features

Exterior Features

Utilities and Appliances

Community

Other Details

Map Location

Driving Directions

Listed by Kevin Harris of KW Legacy Partners ((860) 670-9513)

The data relating to real estate for sale on this website appears in part through the SmartMLS Internet Data Exchange program, a voluntary cooperative exchange of property listing data between licensed real estate brokerage firms, and is provided by SmartMLS through a licensing agreement. Listing information is from various brokers who participate in the SmartMLS IDX program and not all listings may be visible on the site. The property information being provided on or through the website is for the personal, non-commercial use of consumers and such information may not be used for any purpose other than to identify prospective properties consumers may be interested in purchasing. Some properties which appear for sale on the website may no longer be available because they are for instance, under contract, sold or are no longer being offered for sale. Property information displayed is deemed reliable but is not guaranteed. Copyright 2026 SmartMLS, Inc.

Hi there! How can we help you?

Contact us using the form below or give us a call.

Send Us A Message:

I agree to receive marketing and customer service calls and text messages from Carey & Guarrera Real Estate. To opt out, you can reply 'stop' at any time or click the unsubscribe link in the emails. Consent is not a condition of purchase. Msg/data rates may apply. Msg frequency varies. Privacy Policy.

Do not fill in this field:

This site is protected by reCAPTCHA and the Google Privacy Policy and Terms of Service apply.

Hi there! How can we help you?

Contact us using the form below or give us a call.

Send Us A Message:

Do not fill in this field:

This site is protected by reCAPTCHA and the Google Privacy Policy and Terms of Service apply.

Hi there! How can we help you?

Contact us using the form below or give us a call.

Send Us A Message:

Do not fill in this field:

This site is protected by reCAPTCHA and the Google Privacy Policy and Terms of Service apply.

Do not fill in this field:

This site is protected by reCAPTCHA and the Google Privacy Policy and Terms of Service apply.

Do not fill in this field:

This site is protected by reCAPTCHA and the Google Privacy Policy and Terms of Service apply.

Do not fill in this field:

This site is protected by reCAPTCHA and the Google Privacy Policy and Terms of Service apply.

$

Do not fill in this field:

This site is protected by reCAPTCHA and the Google Privacy Policy and Terms of Service apply.