Listing Tools

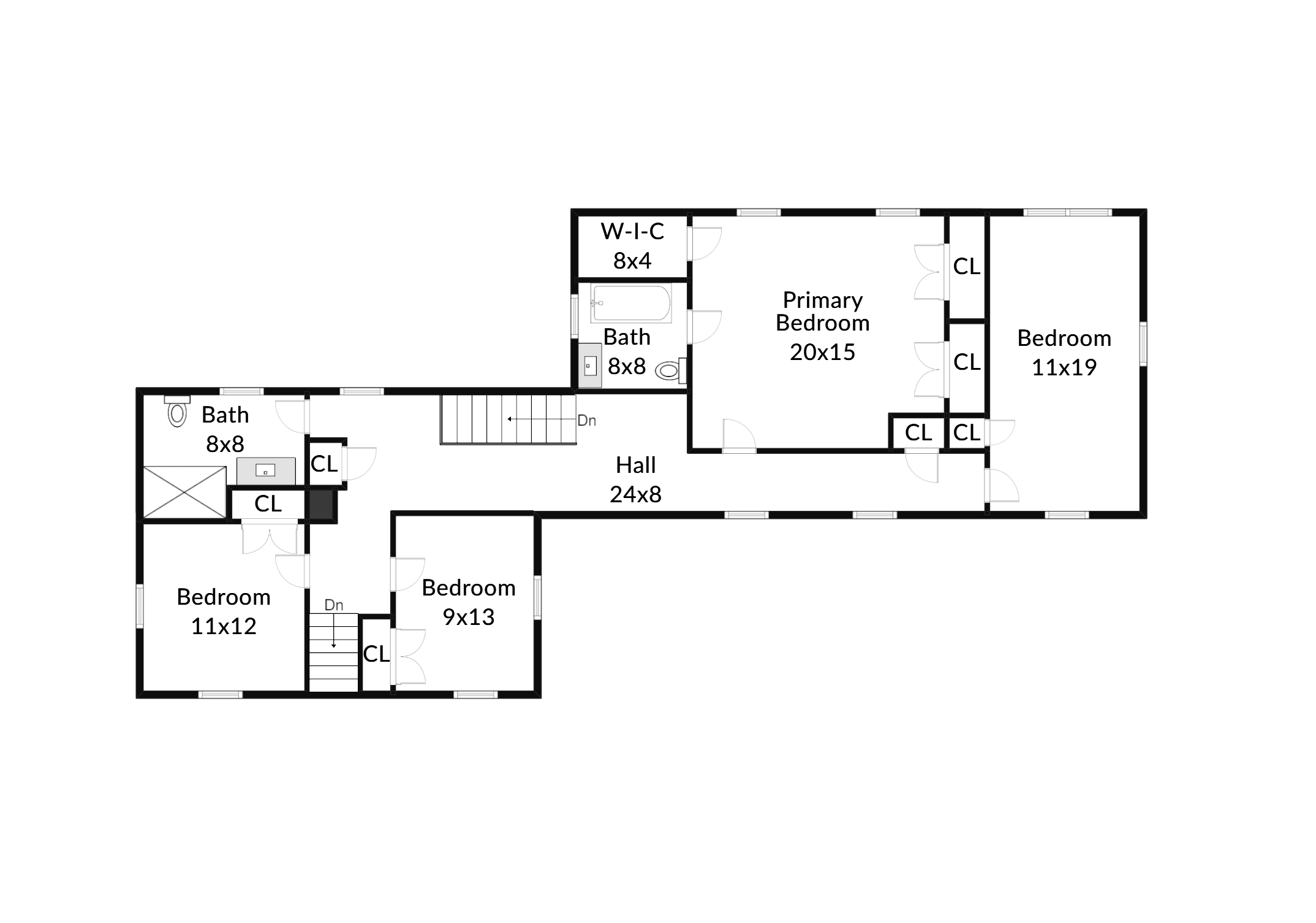
In the heart of Darien, where history lingers and owls whisper through the trees, stands a timeless 1800s home at 561 Middlesex Road - a place where memory breathes and dreams take root. Set upon 2.6 serene and level acres, yet close to all amenities, this enchanting farmhouse rests within a world of quiet beauty, where a secret garden path winds softly beneath the shade, inviting you to wander, reflect and simply be. Rich with the echo of generations, this home opens its doors to warmth and welcome with its wide plank floors, worn smooth by countless footsteps, that guide you through rooms that glow with quiet charm - from the parlor's embrace to the dining room's gentle light. At its heart lies a light-filled, open-plan kitchen, where aromas mingle with laughter and recipes become the language of love and memory, all while uniting you with the outdoors. A great room, crowned with exposed beams and centered by a wood-burning hearth, promises long evenings of conversation, storytelling and shared delight. A cozy den invites quiet moments with a favorite book, while a cheerful playroom offers a world of imagination for the young at heart. With four inviting bedrooms and 3.5 baths, this home offers space for family and friends alike. Here, every corner whispers of possibility - a sanctuary waiting for its next chapter, for new hands to shape its story, for new hearts to call it home. Within its walls, time softens, and life unfolds like poetry written in sunlight and laughter

Property Details of 561 Middlesex Road

Property Details

Interior Features

Exterior Features

Utilities and Appliances

Community

Other Details

Map Location

Driving Directions

Listed by Serena A Richards of Brown Harris Stevens ((203) 273-2073)

The data relating to real estate for sale on this website appears in part through the SmartMLS Internet Data Exchange program, a voluntary cooperative exchange of property listing data between licensed real estate brokerage firms, and is provided by SmartMLS through a licensing agreement. Listing information is from various brokers who participate in the SmartMLS IDX program and not all listings may be visible on the site. The property information being provided on or through the website is for the personal, non-commercial use of consumers and such information may not be used for any purpose other than to identify prospective properties consumers may be interested in purchasing. Some properties which appear for sale on the website may no longer be available because they are for instance, under contract, sold or are no longer being offered for sale. Property information displayed is deemed reliable but is not guaranteed. Copyright 2025 SmartMLS, Inc.

Hi there! How can we help you?

Contact us using the form below or give us a call.

Send Us A Message:

I agree to receive marketing and customer service calls and text messages from Carey & Guarrera Real Estate. To opt out, you can reply 'stop' at any time or click the unsubscribe link in the emails. Consent is not a condition of purchase. Msg/data rates may apply. Msg frequency varies. Privacy Policy.

Do not fill in this field:

This site is protected by reCAPTCHA and the Google Privacy Policy and Terms of Service apply.

Hi there! How can we help you?

Contact us using the form below or give us a call.

Send Us A Message:

Do not fill in this field:

This site is protected by reCAPTCHA and the Google Privacy Policy and Terms of Service apply.

Hi there! How can we help you?

Contact us using the form below or give us a call.

Send Us A Message:

Do not fill in this field:

This site is protected by reCAPTCHA and the Google Privacy Policy and Terms of Service apply.

Do not fill in this field:

This site is protected by reCAPTCHA and the Google Privacy Policy and Terms of Service apply.

Do not fill in this field:

This site is protected by reCAPTCHA and the Google Privacy Policy and Terms of Service apply.

Do not fill in this field:

This site is protected by reCAPTCHA and the Google Privacy Policy and Terms of Service apply.

$

Do not fill in this field:

This site is protected by reCAPTCHA and the Google Privacy Policy and Terms of Service apply.