Listing Tools

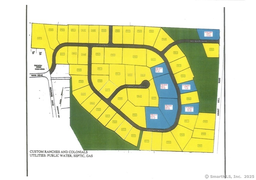
BUILD YOUR DREAM HOME TODAY! Grant Hill Estates by Mannarino Builders offers a rare opportunity to create a custom home in one of the area's most desirable neighborhoods. Choose from six available lots with a variety of floor plans, home models, and personalized finishes to match your vision. "The Stonington" is a Stunning Colonial offering 5 spacious bedrooms, 3.5 bathrooms, and 3151 sq ft providing the perfect layout for comfortable family living and entertaining. A grand two-story foyer that makes an immediate impression. The gourmet kitchen featuring custom cabinetry, your choice of granite or quartz countertops, stainless steel appliances, spacious island, and a walk-in pantry. The two-story great room features a cozy gas fireplace and large sliding glass doors that lead out to a 16'X12' maintenance free deck overlooking your private, treed backyard. A standout feature of this home is the first-floor flex room, complete with a full bathroom and walk-in closet-making it a perfect guest suite or second primary bedroom. Enjoy formal entertaining in the elegant dining room, and take advantage of the dedicated study-ideal for working from home or quiet retreat. Throughout the main floor, you'll find gleaming hardwood floors and soaring 9-foot ceilings that enhance the home's spacious feel. A convenient laundry room and mudroom add everyday functionality, while a stylish half bathroom completes the first floor.

Property Details of 54 Wolf Hill Road, Unit TBB, Coventry

Property Details

Interior Features

Utilities and Appliances

Community

Other Details

Map Location

Driving Directions

Listed by Eileen M. Mannarino of Berkshire Hathaway NE Prop. ((860) 985-6706)

The data relating to real estate for sale on this website appears in part through the SmartMLS Internet Data Exchange program, a voluntary cooperative exchange of property listing data between licensed real estate brokerage firms, and is provided by SmartMLS through a licensing agreement. Listing information is from various brokers who participate in the SmartMLS IDX program and not all listings may be visible on the site. The property information being provided on or through the website is for the personal, non-commercial use of consumers and such information may not be used for any purpose other than to identify prospective properties consumers may be interested in purchasing. Some properties which appear for sale on the website may no longer be available because they are for instance, under contract, sold or are no longer being offered for sale. Property information displayed is deemed reliable but is not guaranteed. Copyright 2025 SmartMLS, Inc.

Hi there! How can we help you?

Contact us using the form below or give us a call.

Send Us A Message:

I agree to receive marketing and customer service calls and text messages from Carey & Guarrera Real Estate. To opt out, you can reply 'stop' at any time or click the unsubscribe link in the emails. Consent is not a condition of purchase. Msg/data rates may apply. Msg frequency varies. Privacy Policy.

Do not fill in this field:

This site is protected by reCAPTCHA and the Google Privacy Policy and Terms of Service apply.

Hi there! How can we help you?

Contact us using the form below or give us a call.

Send Us A Message:

Do not fill in this field:

This site is protected by reCAPTCHA and the Google Privacy Policy and Terms of Service apply.

Hi there! How can we help you?

Contact us using the form below or give us a call.

Send Us A Message:

Do not fill in this field:

This site is protected by reCAPTCHA and the Google Privacy Policy and Terms of Service apply.

Do not fill in this field:

This site is protected by reCAPTCHA and the Google Privacy Policy and Terms of Service apply.

Do not fill in this field:

This site is protected by reCAPTCHA and the Google Privacy Policy and Terms of Service apply.

Do not fill in this field:

This site is protected by reCAPTCHA and the Google Privacy Policy and Terms of Service apply.

$

Do not fill in this field:

This site is protected by reCAPTCHA and the Google Privacy Policy and Terms of Service apply.